14 000 €
7,00€/m²
Siūlykite savo kainą
Komercinė
: Ateities g. Vilniaus m. sav.
| Plotas 2000 m² | Aukštas 1/4 |
Nuomojamos įvairaus dydžio nuo 16 m² iki 940 m² administracinės/biuro/prekybos/paslaugų patalpos strategiškai patogioje vietoje – Ateities g. 10A. Patogi infrastruktūra, aiški lokacija ir lengvas susisiekimas tiek asmeniniu, tiek viešuoju transportu leis Jūsų klientams bei darbuotojams lengvai pasiekti biurą, o Jums – mėgautis miesto patogumais ir dinamika.
🏢 APIE PATALPAS
Siūlome nuomotis įvairaus dydžio nuo 16 m² iki 940 m² moderniai įrengtas patalpas, išsidėsčiusias 1–4 aukštuose. Patalpos įrengtos, čia rasite viską, ko reikia sėkmingai bei patogiai Jūsų veiklai!
- Atskirai įrengti įėjimai užtikrins patogų patekimą.
- Signalizacija ir apsauga – didesniam saugumui.
- Konferencijų salė susitikimams ir renginiams.
- Kokybiškas internetas ir kondicionavimo sistemos gerai darbo atmosferai.
- Modernus bendras įrengimas, atitinkantis šiuolaikiškus standartus.
- Erdvi automobilių stovėjimo aikštelė prie pastato – patogu darbuotojams ir klientams.
- Patalpos puikiai pritaikytos įvairaus dydžio kolektyvams – galimas lankstus patalpų plotas pagal poreikį.
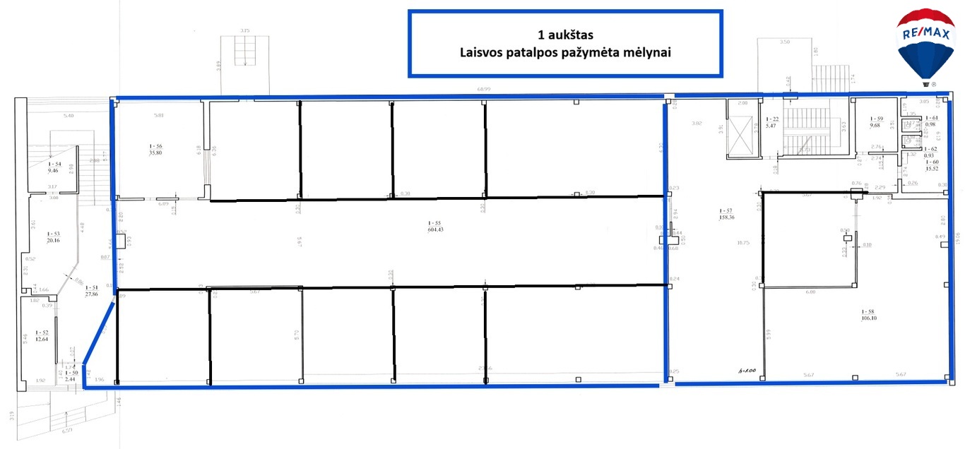
Šiuo metu laisvos patalpos:
1 aukštas - 640 m² ir 300 m² (žr. planą).
2 aukštas - nuo 34 m² iki 101 m² (žr. planą).
3 aukštas - nuo 16 m² iki 115 m² (žr. planą).
4 aukštas - nuo 27 m² iki 50 m² (žr. planą).
💡 PRIVALUMAI
- Reprezentatyvus pastatas patogioje ir lengvai randamoje miesto dalyje šalia arterinių Geležinio Vilko ir Kalvarijų gatvių.
- Patogus bei paprastas privažiavimas tiek automobiliu, tiek viešuoju transportu.
- Nemokamas erdvus parkingas iš abiejų pastato pusių.
- Gera kaimynystė: jau įsitvirtinę verslai ir visa miesto infrastruktūra.
- Naujai įrengta saulės elektrinė - mažesni elektros sunaudojimo kaštai.
- Signalizacija, stebėjimo kameros, kondicionavimo sistema.
🔑 KAINOS IR SĄLYGOS
- Nuomos kaina nuo 6 iki 8 EUR/m² + PVM + komunalinės paslaugos, priklausomai nuo ploto ir aukšto.
- Nuomos laikotarpis ir plotas gali būti derinamas pagal Jūsų poreikius.
Dėl patalpų apžiūros ar papildomos informacijos – kreipkitės ir susitarsime Jums patogiu metu!
🏢 APIE PATALPAS
Siūlome nuomotis įvairaus dydžio nuo 16 m² iki 940 m² moderniai įrengtas patalpas, išsidėsčiusias 1–4 aukštuose. Patalpos įrengtos, čia rasite viską, ko reikia sėkmingai bei patogiai Jūsų veiklai!
- Atskirai įrengti įėjimai užtikrins patogų patekimą.
- Signalizacija ir apsauga – didesniam saugumui.
- Konferencijų salė susitikimams ir renginiams.
- Kokybiškas internetas ir kondicionavimo sistemos gerai darbo atmosferai.
- Modernus bendras įrengimas, atitinkantis šiuolaikiškus standartus.
- Erdvi automobilių stovėjimo aikštelė prie pastato – patogu darbuotojams ir klientams.
- Patalpos puikiai pritaikytos įvairaus dydžio kolektyvams – galimas lankstus patalpų plotas pagal poreikį.
Šiuo metu laisvos patalpos:
1 aukštas - 640 m² ir 300 m² (žr. planą).
2 aukštas - nuo 34 m² iki 101 m² (žr. planą).
3 aukštas - nuo 16 m² iki 115 m² (žr. planą).
4 aukštas - nuo 27 m² iki 50 m² (žr. planą).
💡 PRIVALUMAI
- Reprezentatyvus pastatas patogioje ir lengvai randamoje miesto dalyje šalia arterinių Geležinio Vilko ir Kalvarijų gatvių.
- Patogus bei paprastas privažiavimas tiek automobiliu, tiek viešuoju transportu.
- Nemokamas erdvus parkingas iš abiejų pastato pusių.
- Gera kaimynystė: jau įsitvirtinę verslai ir visa miesto infrastruktūra.
- Naujai įrengta saulės elektrinė - mažesni elektros sunaudojimo kaštai.
- Signalizacija, stebėjimo kameros, kondicionavimo sistema.
🔑 KAINOS IR SĄLYGOS
- Nuomos kaina nuo 6 iki 8 EUR/m² + PVM + komunalinės paslaugos, priklausomai nuo ploto ir aukšto.
- Nuomos laikotarpis ir plotas gali būti derinamas pagal Jūsų poreikius.
Dėl patalpų apžiūros ar papildomos informacijos – kreipkitės ir susitarsime Jums patogiu metu!
