170 000 €
1 195,42€/m²
Siūlykite savo kainą
Namas
: Pamarliškių g. Panevėžio r. sav.
| Kambarių sk. 4 | Statybos metai 2025 m. | Plotas 142.21 m² | Sklypo plotas 9.46 a |
Parduodamas statomas A++ energinės klasės gyvenamasis namas vaizdingoje vietoje šalia Panevėžio. Nauja gyvenvietė įsikūrusi šalia miško, kitoje kelio pusėje teka Lėvuo.
Geras susisiekimas su miestu asfaltuotu keliu. Nuo miesto centro tik 8,5 km.
Namą stato statybos įmonė, visi darbai atlikti kokybiškai.
Iki dalinės apdailos liko atlikti šiuos darbus : sumontuoti rekuperatorių, užbaigti elektros instaliacijos darbus, prisukti gipso kartono plokštes ant sienų, įrengti įtempiamas lubas.
BENDRA INFORMACIJA:
Adresas – Pamarliškių g. 21, Pamarliškių k., Panevėžio r.
Namo bendras plotas – 142,21 kv. m.
Kambarių skaičius – 4.
Aukštų skaičius – 1.
Namo tipas – mūrinis.
Statybos metai – 2025 m.
Sklypo plotas – 9,46 a.
ĮRENGIMAS:
Langai – plastikiniai, trijų stiklų paketai.
Grindys – lygus betonas.
Sienos – iš silikatinių blokelių Arko24.
Pamatai – apšiltinti ekstruziniu putplasčiu Finnfoam.
Lubos - apšiltintos 50 cm.
Fasadas – apšiltintas.
Stogas – šlaitinis, danga – betoninės čerpės.
Vamzdynai – plastikiniai.
Šildomos grindys.
KOMUNIKACIJOS:
Šildymas – numatytas aeroterminis šildymas oras - vanduo.
Vandentiekis – gręžinys (įrengtas).
Kanalizacija – vietiniai valymo įrenginiai (įrengta).
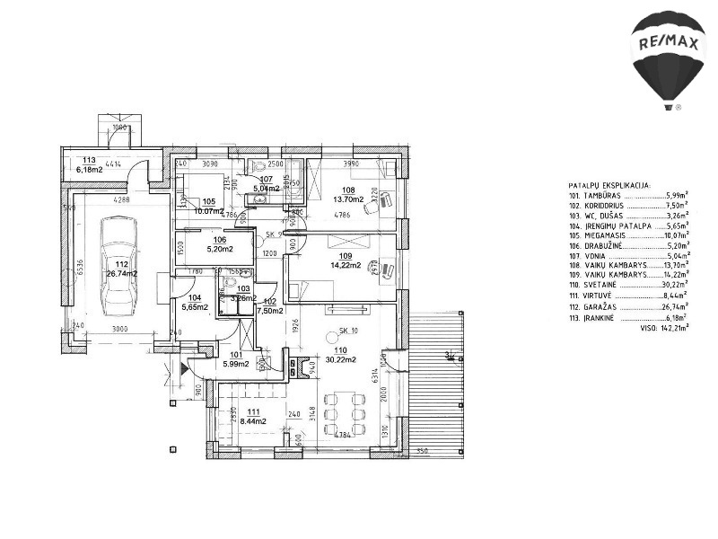
NAMO PLANAS:
Svetainė su virtuvės zona – 38,66 kv. m.
Vaiko kambarys – 13,70 kv. m.
Vaiko kambarys – 14,22 kv. m.
Miegamasis kambarys – 10,07 kv. m.
Vonios kambarys – 5,04 kv. m.
Wc, dušas– 3,26 m2
Drabužinė – 5,20 kv. m.
Koridorius – 7,50 kv. m.
Tambūras – 5,99 kv. m.
Įrankinė – 6,18 kv. m.
Įrengimų patalpa – 5,65 kv. m.
Garažas – 26,74 kv. m.
Prie namo rytinės sienos yra numatyta terasa.
ŠIUO METU ATLIEKAMA NAMO REGISTRACIJA BAIGTUMUI NUSTATYTI.
Geras susisiekimas su miestu asfaltuotu keliu. Nuo miesto centro tik 8,5 km.
Namą stato statybos įmonė, visi darbai atlikti kokybiškai.
Iki dalinės apdailos liko atlikti šiuos darbus : sumontuoti rekuperatorių, užbaigti elektros instaliacijos darbus, prisukti gipso kartono plokštes ant sienų, įrengti įtempiamas lubas.
BENDRA INFORMACIJA:
Adresas – Pamarliškių g. 21, Pamarliškių k., Panevėžio r.
Namo bendras plotas – 142,21 kv. m.
Kambarių skaičius – 4.
Aukštų skaičius – 1.
Namo tipas – mūrinis.
Statybos metai – 2025 m.
Sklypo plotas – 9,46 a.
ĮRENGIMAS:
Langai – plastikiniai, trijų stiklų paketai.
Grindys – lygus betonas.
Sienos – iš silikatinių blokelių Arko24.
Pamatai – apšiltinti ekstruziniu putplasčiu Finnfoam.
Lubos - apšiltintos 50 cm.
Fasadas – apšiltintas.
Stogas – šlaitinis, danga – betoninės čerpės.
Vamzdynai – plastikiniai.
Šildomos grindys.
KOMUNIKACIJOS:
Šildymas – numatytas aeroterminis šildymas oras - vanduo.
Vandentiekis – gręžinys (įrengtas).
Kanalizacija – vietiniai valymo įrenginiai (įrengta).
NAMO PLANAS:
Svetainė su virtuvės zona – 38,66 kv. m.
Vaiko kambarys – 13,70 kv. m.
Vaiko kambarys – 14,22 kv. m.
Miegamasis kambarys – 10,07 kv. m.
Vonios kambarys – 5,04 kv. m.
Wc, dušas– 3,26 m2
Drabužinė – 5,20 kv. m.
Koridorius – 7,50 kv. m.
Tambūras – 5,99 kv. m.
Įrankinė – 6,18 kv. m.
Įrengimų patalpa – 5,65 kv. m.
Garažas – 26,74 kv. m.
Prie namo rytinės sienos yra numatyta terasa.
ŠIUO METU ATLIEKAMA NAMO REGISTRACIJA BAIGTUMUI NUSTATYTI.
