249 900 €
2 100,00€/m²
Siūlykite savo kainą
Butas
: Vilniaus g. Centras Šiaulių m. sav.
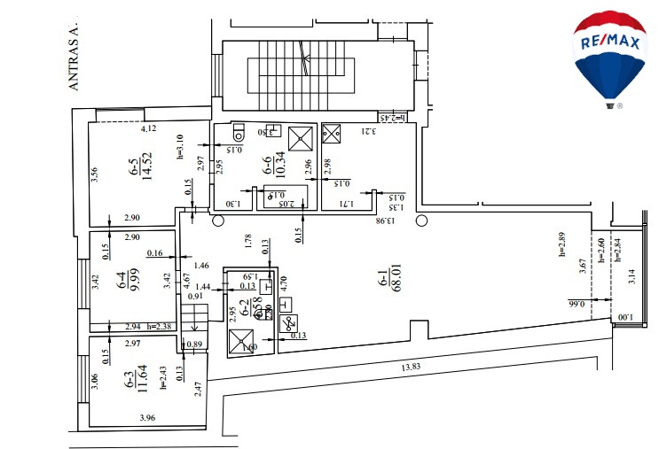
| Kambarių sk. 4 | Statybos metai 1937 m. | Plotas 119 m² | Aukštas 2/4 |
Ieškote išskirtinio ir erdvaus būsto pačioje Šiaulių širdyje? Parduodamas ypatingas 119 kv.m. ploto 4 kambarių butas prestižinėje Šiaulių miesto vietoje, pačiame centre, Vilniaus g. 124! Tai istorinis, vienas iš nedaugelio pastatų išgyvenęs antrąjį pasaulinį karą, tačiau visiškai atnaujintas būstas, kuriame iš karto pajusite komforto ir kokybės derinį. Bute yra net du vonios kambariai!
Pro vitrininius langus atsiveria nuostabus vaizdas į Šiaulių bulvarą, patenka daug saulės šviesos, tad butas nors ir išskirtinai erdvus, yra šviesus ir jaukus. Visi centro privalumai, ugdymo įstaigos, parduotuvės, vaikų būreliai lengvai pasiekiami pėstute, tai komfortiško gyvenimo ypatybė. Namo plotas miesto centre!
Atlikta kapitalinė renovacija, naudotos tik kokybiškos medžiagos, apšiltinta perdanga, išorinės sienos, vidinės sienos ir pertvaros. Viskas nauja, tad drąsiai savo savybėmis butas prilygsta naujos statybos projektams.
🏡 BENDRA INFORMACIJA
- Buto plotas – 119 kv.m.
- Kambarių skaičius – 4
- Aukštas – 2/4
- Pastato tipas – mūrinis
- Statybos metai – 1937 m.
- Pilnai renovuotas – 2026 m.
💡 KOMUNIKACIJOS IR INŽINERIJA
- Šildymas – ekonomiškas autonominis dujinis
- Atvestas internetas
- Nauja elektros instaliacija
- Šildomos grindys
- Plastikiniai langai su stiklo paketais
- Naujas vandentiekio ir nuotekų vamzdynas iki pat miesto šulinio.
- Šarvo durys papildomam saugumui.
🔨 APDAILA
- Aukštos lubos suteikia erdvės pojūtį
- Plastikiniai A++ klasės langai užtikrina šilumą ir tylą
- Naujai išvedžiota elektros instaliacija
- Kokybiškai įrengtos grindys su šildymo sistema
🌆 LOKACIJA
Butas įsikūręs pačiame miesto bulvare. Tai patogi, paslaugomis ir pramogomis turtinga miesto vieta, kuri užtikrina trumpus atstumus iki parduotuvių, kavinių, darbo ir laisvalaikio vietų. Šalia namų veikia pilna miesto infrastruktūra – patogus susisiekimas viešuoju transportu bei pėsčiomis su visais miesto rajonais. Puiki lokacija šeimoms, vertinančioms aktyvų miesto gyvenimą ir norinčioms viską pasiekti greitai bei paprastai.
💎 KITA INFORMACIJA
- Istorinis pastatas su moderniais atnaujinimais
- Aukštos lubos ir erdvios patalpos maloniam šeimos gyvenimui
- 2026 metais planuojami pastato stogo ir fasado atnaujinimo darbai, jau yra nubalsuota ir patvirtinta.
- Namą administruoja bendrija
- Bus sutvarkyta išskirtinė laiptinė
- Rami aplinka su visais miesto teikiamais patogumais
Tai tobula galimybė šeimai ieškančiai aukščiausios kokybės, erdvės ir išskirtinės lokacijos pačiame miesto centre. Butas toliau nuo judraus miesto eismo su puikiu vaizdu pro langą. Tikras miesto gyvenimo perlas su visais moderniais patogumais, kurie garantuos komfortą šiandien ir ateityje!
Susidomėjote? Nelaukite! Šis išskirtinis butas laukia naujų šeimininkų, todėl paskubėkite, nes tokie pasiūlymai – ypatingai reti!
Daugiau informacijos telefonu: 8 640 63 417
Sertifikuotas LNTAA brokeris
RE/MAX Trust biuro vadovas
Justas Niauronis
RE/MAX:
Greitas ir saugus sandoris. Pirkėjams nėra tarpininkavimo mokesčio. Perkant su paskola - palankios SWEDBANK, SEB, LUMINOR, ŠIAULIŲ bankų sąlygos. Nemokamos konsultacijos.
Nekilnojamo turto brokeriams - jei turite klientą šiam objektui, kreipkitės!
Pro vitrininius langus atsiveria nuostabus vaizdas į Šiaulių bulvarą, patenka daug saulės šviesos, tad butas nors ir išskirtinai erdvus, yra šviesus ir jaukus. Visi centro privalumai, ugdymo įstaigos, parduotuvės, vaikų būreliai lengvai pasiekiami pėstute, tai komfortiško gyvenimo ypatybė. Namo plotas miesto centre!
Atlikta kapitalinė renovacija, naudotos tik kokybiškos medžiagos, apšiltinta perdanga, išorinės sienos, vidinės sienos ir pertvaros. Viskas nauja, tad drąsiai savo savybėmis butas prilygsta naujos statybos projektams.
🏡 BENDRA INFORMACIJA
- Buto plotas – 119 kv.m.
- Kambarių skaičius – 4
- Aukštas – 2/4
- Pastato tipas – mūrinis
- Statybos metai – 1937 m.
- Pilnai renovuotas – 2026 m.
💡 KOMUNIKACIJOS IR INŽINERIJA
- Šildymas – ekonomiškas autonominis dujinis
- Atvestas internetas
- Nauja elektros instaliacija
- Šildomos grindys
- Plastikiniai langai su stiklo paketais
- Naujas vandentiekio ir nuotekų vamzdynas iki pat miesto šulinio.
- Šarvo durys papildomam saugumui.
🔨 APDAILA
- Aukštos lubos suteikia erdvės pojūtį
- Plastikiniai A++ klasės langai užtikrina šilumą ir tylą
- Naujai išvedžiota elektros instaliacija
- Kokybiškai įrengtos grindys su šildymo sistema
🌆 LOKACIJA
Butas įsikūręs pačiame miesto bulvare. Tai patogi, paslaugomis ir pramogomis turtinga miesto vieta, kuri užtikrina trumpus atstumus iki parduotuvių, kavinių, darbo ir laisvalaikio vietų. Šalia namų veikia pilna miesto infrastruktūra – patogus susisiekimas viešuoju transportu bei pėsčiomis su visais miesto rajonais. Puiki lokacija šeimoms, vertinančioms aktyvų miesto gyvenimą ir norinčioms viską pasiekti greitai bei paprastai.
💎 KITA INFORMACIJA
- Istorinis pastatas su moderniais atnaujinimais
- Aukštos lubos ir erdvios patalpos maloniam šeimos gyvenimui
- 2026 metais planuojami pastato stogo ir fasado atnaujinimo darbai, jau yra nubalsuota ir patvirtinta.
- Namą administruoja bendrija
- Bus sutvarkyta išskirtinė laiptinė
- Rami aplinka su visais miesto teikiamais patogumais
Tai tobula galimybė šeimai ieškančiai aukščiausios kokybės, erdvės ir išskirtinės lokacijos pačiame miesto centre. Butas toliau nuo judraus miesto eismo su puikiu vaizdu pro langą. Tikras miesto gyvenimo perlas su visais moderniais patogumais, kurie garantuos komfortą šiandien ir ateityje!
Susidomėjote? Nelaukite! Šis išskirtinis butas laukia naujų šeimininkų, todėl paskubėkite, nes tokie pasiūlymai – ypatingai reti!
Daugiau informacijos telefonu: 8 640 63 417
Sertifikuotas LNTAA brokeris
RE/MAX Trust biuro vadovas
Justas Niauronis
RE/MAX:
Greitas ir saugus sandoris. Pirkėjams nėra tarpininkavimo mokesčio. Perkant su paskola - palankios SWEDBANK, SEB, LUMINOR, ŠIAULIŲ bankų sąlygos. Nemokamos konsultacijos.
Nekilnojamo turto brokeriams - jei turite klientą šiam objektui, kreipkitės!
